Kennet Walk, Reading, Berkshire

Sold Subject to Contract £175,000

1 1 1

SOLD BY NICHOLAS ESTATE AGENTS & NEA LETTINGS: DIRECT WATER VIEWS. Set within this sought after development is this well presented first floor apartment that offers direct views over the river Kennet. The property boasts a good sized living room with a south facing 'Juliet' style balcony and an modern open plan kitchen. There is a spacious double bedroom, ample storage and a modern shower room. To the rear there is an allocated parking space. To appreciate the space and views on offer call now to view.

Communal entrance

Stairs and lift to the first floor.

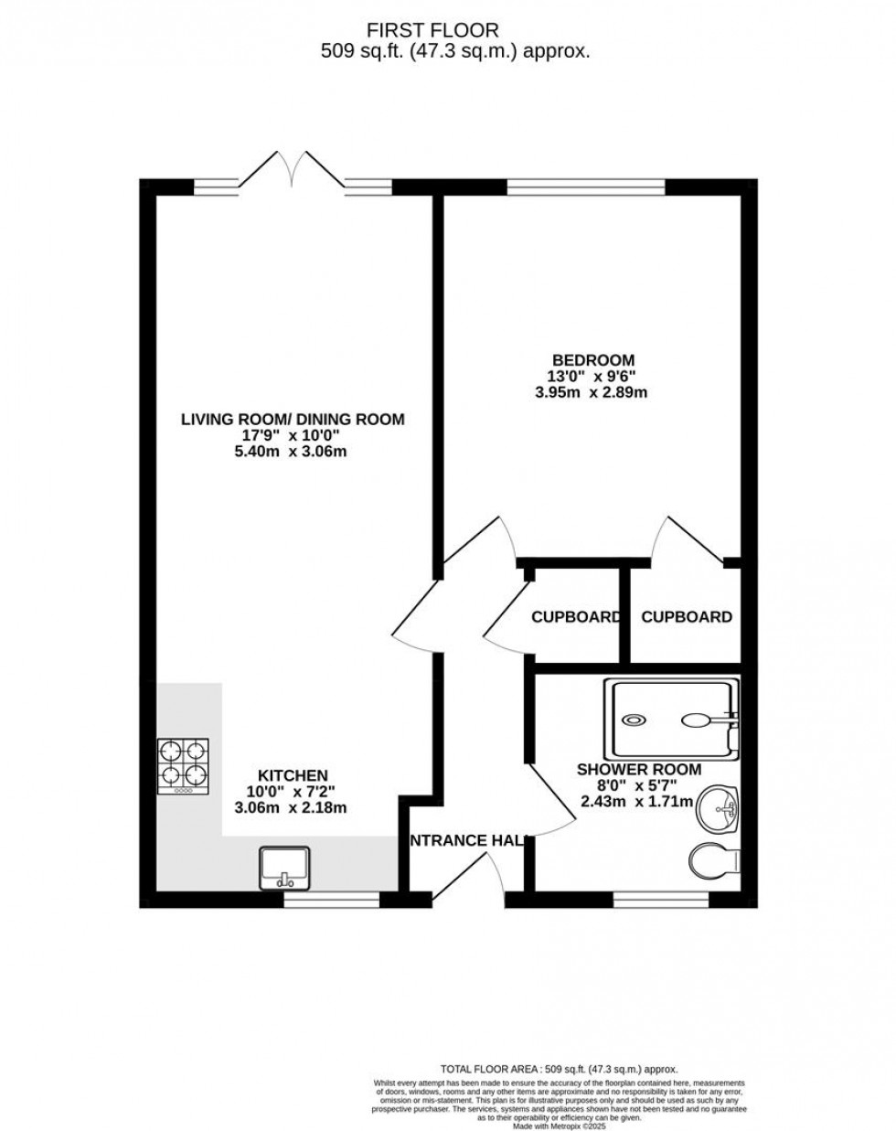
Hallway

A good sized hallway with a cupboard housing the hot water cylinder, electric heater, laminate wood flooring doors to:

Living room (5.41m x 3.05m)

Offering uninterrupted views over the river Kennet is this light and airy room, laminate wood flooring and open plan to the kitchen area

Kitchen area (3.07m x 2.18m)

A modern kitchen with ample wall and base units, roll top work surfaces with an inset sink, four ring hob, oven, extractor and recess for the washing machine and fridge / freezer. There is a window to the rear, splash backs and tile effect flooring.

Shower room (2.44m x 1.70m)

A good sized shower room comprising of large shower, WC, wash handbasin. Rubber flooring, part tiled walls and a frosted window to the rear.

Bedroom (3.96m x 2.90m)

A good sized room with large window that over looks the river, storage cupboard, ample space for additional wardrobes and wood effect flooring.

Views from the living room

Direct views over the River Kennet.

Tenure

Lease: 999 years from 2001
Service charge: £1545
Ground rent: £100 pa rising every 25 years to a maximum of £250 pa

Services

Water. Mains
Drainage. Mains
Electricity. Mains
Heating. Electric

Mobile phone. The vendor is not aware of any specific restricted mobile phone coverage

Broadband. Superfast, obtained from Ofcom

  • Chain free
  • Ideal first time buy or buy to let
  • Direct River Kennet views
  • One double bedroom
  • Modern open plan kitchen
  • South-facing living room with a Juliet Balcony
  • Allocated parking
  • Easy access to central Reading & Reading mainline station
  • EPC rating C
  • Council tax band C
Floorplan for Kennet Walk, Reading, Berkshire
EPC Graph for Kennet Walk, Reading, Berkshire

Get an instant online valuation

Find out how much your property is worth