NEA LETTINGS: This two bedroom mid terrace house has been recently refurbished and offers a modern kitchen, downstairs cloakroom, two reception rooms, two double bedrooms, larger shower room and a long garden. Located just 0.9 miles from the Reading train station, this property would be ideal for a professional couple or small family. Pets will be considered. EPC Rating E.DISCLAIMER: These particulars are a general guide only, they do not form part of any contract. Video content and other marketing material shown are believed to be an accurate and fair representation of the property at the time the particulars were created. Please ensure you have made all investigations, and you are satisfied that all your property requirements have been met if you make an offer without a physical viewing.

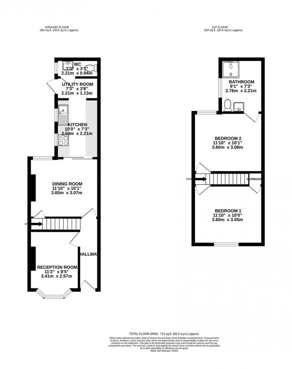
Hallway

As you enter the front door you come into the hallway with access to the reception room on your left hand side.

Reception room

The reception room benefits from a bay front window, two small shelves and a small cupboard.

Dining room

As you enter the dining room you have a window to the garden and a storage cupboard under the stairs.

Kitchen

The kitchen offers ample storage and is brand new benefiting from an electric hob, cooker, sink and fridge/freezer.

Utility area

This is accessed from the kitchen and has a door to the garden and your left, a washing/dryer on your right hand side with a door to downstairs cloakroom.

Downstairs Cloakroom

Benefits from a toilet, sink and mirror.

Bedroom One

As you come up the stairs you enter bedroom one on your left which offers a window to the front of the property and a storage cupboard over the stairs.

Bedroom Two

Bedroom two is accessed from your right as you come up the stairs and benefits from a window to the rear of the property and access to the bathroom.

Shower room

Accessed via bedroom two, the large shower room has a cubicle shower, toilet, sink and window to the garden.

Garden

A long and narrow garden which is accessed from the utility area.

  • NEA Lettings
  • Caversham
  • Mid-Terrace house
  • Two double bedrooms
  • Unfurnished
  • Permit parking
  • Enclosed rear garden
  • Council Tax Band C
  • EPC Rating E
  • Available 26th November
Floorplan for Gosbrook Road, Caversham, Reading
EPC Graph for Gosbrook Road, Caversham, Reading

Get an instant online valuation

Find out how much your property is worth