NEA LETTINGS: Set within the popular town centre Holybrook development adjacent to the Oracle Shopping Centre and within a short walk of Reading Mainline Railway Station, is this one double bedroom apartment. Located on the ground floor, this apartment has a modern kitchen and shower room, a spacious and bright living room, one double bedroom and private courtyard style garden. This property benefits from allocated parking. Viewings highly recommended. EPC Rating D.DISCLAIMER : These particulars are a general guide only, they do not form part of any contract. Video content and other marketing material shown are believed to be an accurate and fair representation of the property at the time the particulars were created. Please ensure you have made all investigations, and you are satisfied that all your property requirements have been met if you make an offer without a physical viewing.

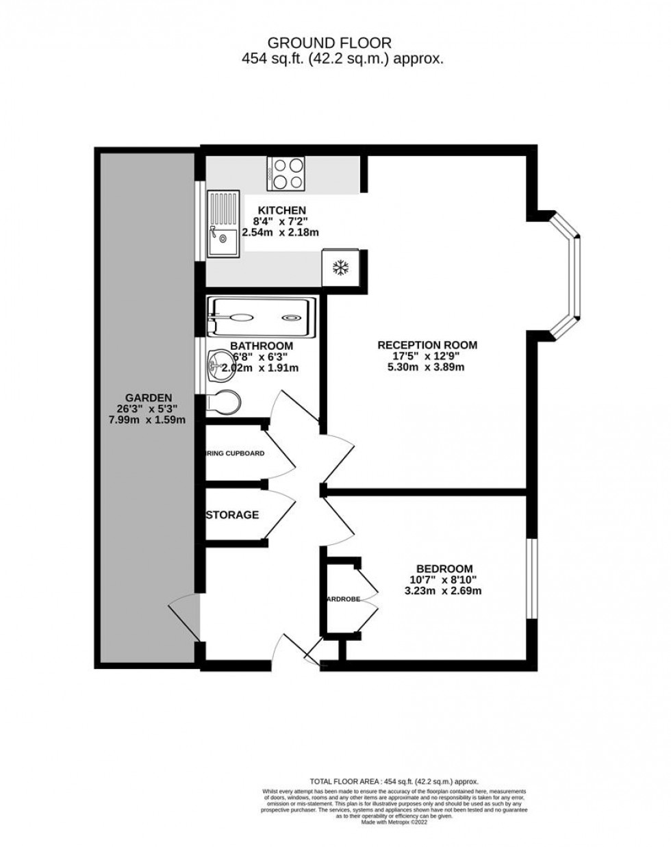
Entrance Hall

A welcoming entrance with doors leading to all room, large storage cupboard with hanging rail, airing cupboard and door to private garden.

Bedroom

A well proportioned double bedroom with wood effect flooring and fitted wardrobe. Furniture includes; tall chest of drawers, bedside drawers, laundry basket, double bed (with storage) and mattress.

Shower Room

With tiled flooring and window overlooking the garden, this modern shower room comprises of full width shower cubicle, wash hand basin and W.C.

Living Room

A large living room with ample space for dining, bay window and wood effect flooring. Opening to kitchen. Furniture includes; tall storage unit, TV unit, coffee table, storage box table, sofa bed with ottoman style storage, dining table and six chairs.

Kitchen

A modern kitchen with wood effect flooring, ample workspace, base and eye level units and window overlooking the garden. Appliances include; fridge/freezer, dishwasher, washer/dryer, electric oven, hob and filter hood (smaller items such as kettle, toaster, microwave, some pots and pans, small amount of cutlery, glasses etc. will be left for tenants use).

Garden

Accessed from the entrance hall is a private Courtyard style garden with gate leading to car park at the rear of the property.

  • NEA Lettings
  • Ground Floor Apartment
  • Reading Town Centre
  • One Double Bedroom
  • Furnished
  • Private Courtyard Garden
  • Allocated Parking
  • Council Tax Band C
  • EPC Rating D
  • Available 10th December
Floorplan for Simmonds Street, Holybrook, Reading
EPC Graph for Simmonds Street, Holybrook, Reading

Get an instant online valuation

Find out how much your property is worth