Set within the well regarded and sought after area of Caversham Heights, the property offers convenient access to the restaurants and shops in the centre of Caversham, an easy commute to Reading Station but is also located in a quiet cul de sac, on a private road. The accommodations consist of very good sized living and family rooms, kitchen and utility room, five large double bedrooms and three bathrooms, two of which are ensuite, as well as a ground floor WC. The property also benefits from off street parking, garage and a pleasant garden. To arrange to see the property, please call.

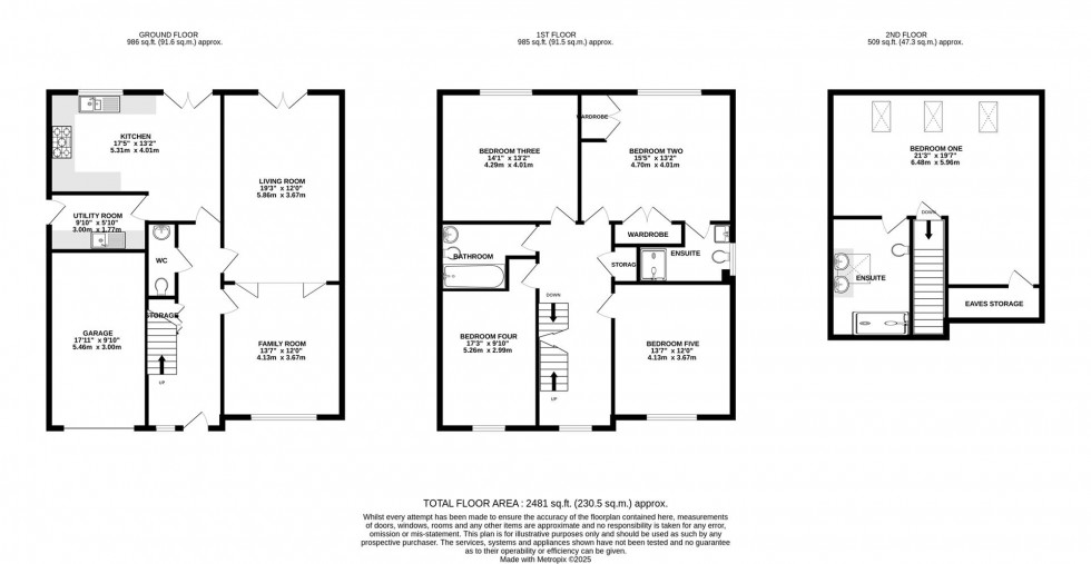
Entrance Hall

A broad and welcoming entrance hall with laminate flooring, doors to living room, family room, kitchen, understairs storage, WC and stairs to the first floor.

Family Room (4.13 x 3.67)

A good sized, bright and airy carpeted family room with a large window overlooking the front of the property and folding double doors to the living room.

Living Room (5.86 x 3.67)

A large carpeted living room with double doors to the garden and folding double doors to the family room.

Kitchen (5.31 x 4.01)

A modern and spacious kitchen with tiled floor, plenty of wall and base units, space for dining table, built in fridge freezer, five ring gas hob, extractor and double oven, space for dishwasher and double doors to the garden.

Utility Room (3 x 1.77)

Utility room with tiled floor, wall and base units, sink and space for washing machine and tumble drier and door to the side of the property.

WC

WC with laminate flooring, sink and toilet.

Landing

Spacious landing with doors to bedrooms two, three, four and five, bathroom, storage and stairs to the second floor.

Bedroom Two (4.7 x 4.01)

A very light and spacious, carpeted double bedroom with two double wardrobes, large window overlooking the garden and door to the ensuite shower room.

Ensuite

Ensuite shower room with vinyl floor, shower, sink WC and window to the side of the property.

Bedroom Three (4.29 x 4.01)

A large, carpeted double bedroom with a good sized window overlooking the garden

Bedroom Four (5.26 x 2.99)

A spacious carpeted double bedroom with two windows overlooking the front of the property.

Bedroom Five (4.13 x 3.67)

A spacious, carpeted double bedroom with a window overlooking the front of the property.

Bathroom

Bathroom with vinyl flooring, bath with a shower, sink, WC and heated towel rail.

Bedroom One (6.48 x 5.96)

A very large, carpeted bedroom on the second floor with eaves storage, three velux windows to the rear of the property and door to the ensuite shower room.

Ensuite

Spacious ensuite shower room with large shower cubicle, twin sinks, WC and heated towel rail with a large velux window to the side of the property.

Garden

An easy to maintain garden, mostly laid to lawn with a sun trap patio and large decked terrace, perfect for summer entertaining.

Garage (5.46 x 3)

Single garage with up and over door with driveway parking in front.

Services

Water. Mains
Drainage. Mains
Electricity. Mains
Heating. Gas

Mobile phone. The vendor is not aware of any specific restricted mobile phone coverage

Broadband. Ultrafast, obtained from Ofcom

Tenure

Freehold
Private Estate Maintenance Charge 1st Jan to 31st Dec 2026: £872.33

  • Detached house set in Caversham Heights
  • Five large bedrooms
  • Three stylish and modern bathrooms
  • Modern kitchen
  • Utility room
  • Integral garage
  • Private road, quiet cul de sac location
  • Easy access to central Caversham
  • Council Tax band G
  • EPC Rating C
Floorplan for Charlotte Close, Caversham, Reading
EPC Graph for Charlotte Close, Caversham, Reading

Get an instant online valuation

Find out how much your property is worth