NEA LETTINGS: This well presented three bedroom mid terrace property located within close proximity to the centre of Caversham, close to the shops, banks, restaurants and leisure facilities and only a 20 minute walk to Reading mainline station. The property comprises of an open plan living/dining area, kitchen, three bedrooms and a spacious garden. The property is unfurnished and double glazed throughout with on road parking to the front. Pets considered. EPC Rating D.DISCLAIMER: These particulars are a general guide only, they do not form part of any contract. Video content and other marketing material shown are believed to be an accurate and fair representation of the property at the time the particulars were created. Please ensure you have made all investigations, and you are satisfied that all your property requirements have been met if you make an offer without a physical viewing.

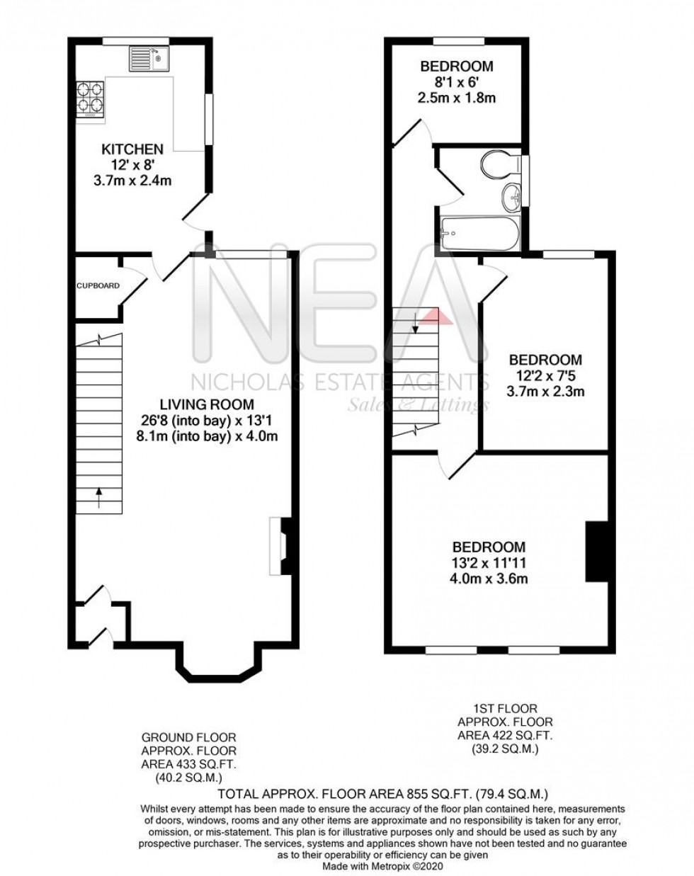
Porch

A convenient porch, leading to the main reception room.

Living/Dining room (8.1 (into bay) x 4.0)

A bright and spacious dual aspect reception room, with an attractive double glazed bay window to the front, with feature fireplace. The lounge area is carpeted with the dining area having original wooden flooring. There is a double glazed window to the rear and access to under-stairs storage.

Kitchen (3.7 x 2.4)

A spacious modern kitchen with ample wall and base units, inset sink with drainer, oven, hob and extractor, large dishwasher, washing machine and freestanding fridge freezer. There is a double glazed window overlooking the garden, with a side door providing access to the garden.

Landing

A carpeted landing with doors leading to:

Bedroom one (4.0 x 3.6)

A spacious double bedroom with ample room for storage and two double glazed windows to the front, allowing ample natural light.

Bedroom two (3.7 x 2.3)

A generous second bedroom, fully carpeted with a radiator and a double glazed window to the rear.

Bathroom

A well equipped bathroom comprising of WC, heated towel rail, freestanding wash basin and bath with a shower attachment. There is a frosted glass double glazed window to the side of this part tiled room.

Bedroom three (2.5 x 1.8)

A convenient third bedroom, making an ideal study, with a double glazed window offering views over the garden.


















.

Garden

This well maintained garden with a southerly aspect comprises of a spacious lawn area, with a large shed at the end of the garden and paved area, ideal for summer BBQs.

  • NEA Lettings
  • Caversham
  • Mid-Terrace House
  • Three Bedrooms
  • Unfurnished
  • Open Plan Living Room
  • Enclosed Rear Garden
  • EPC Rating D
  • Council Tax Band C
  • Available 17th December
Floorplan for Donkin Hill, Caversham, Reading
EPC Graph for Donkin Hill, Caversham, Reading

Get an instant online valuation

Find out how much your property is worth