SOLD BY NICHOLAS ESTATE AGENTS & NEA LETTINGS PRIOR TO MARKETING: IDEAL FIRST TIME BUY OR RENTAL INVESTMENT: Located only moments from the River Thames and within easy reach of central Caversham is this well presented mid terraced period house. The property boasts two double bedrooms and a good sized bathroom on the first floor. On the ground floor there is light and airy open plan living / dining room with a feature fire place and a kitchen. To the rear there are several outbuildings and a good sized garden that is ideal for summer entertaining. To appreciate the space on offer call now to view.

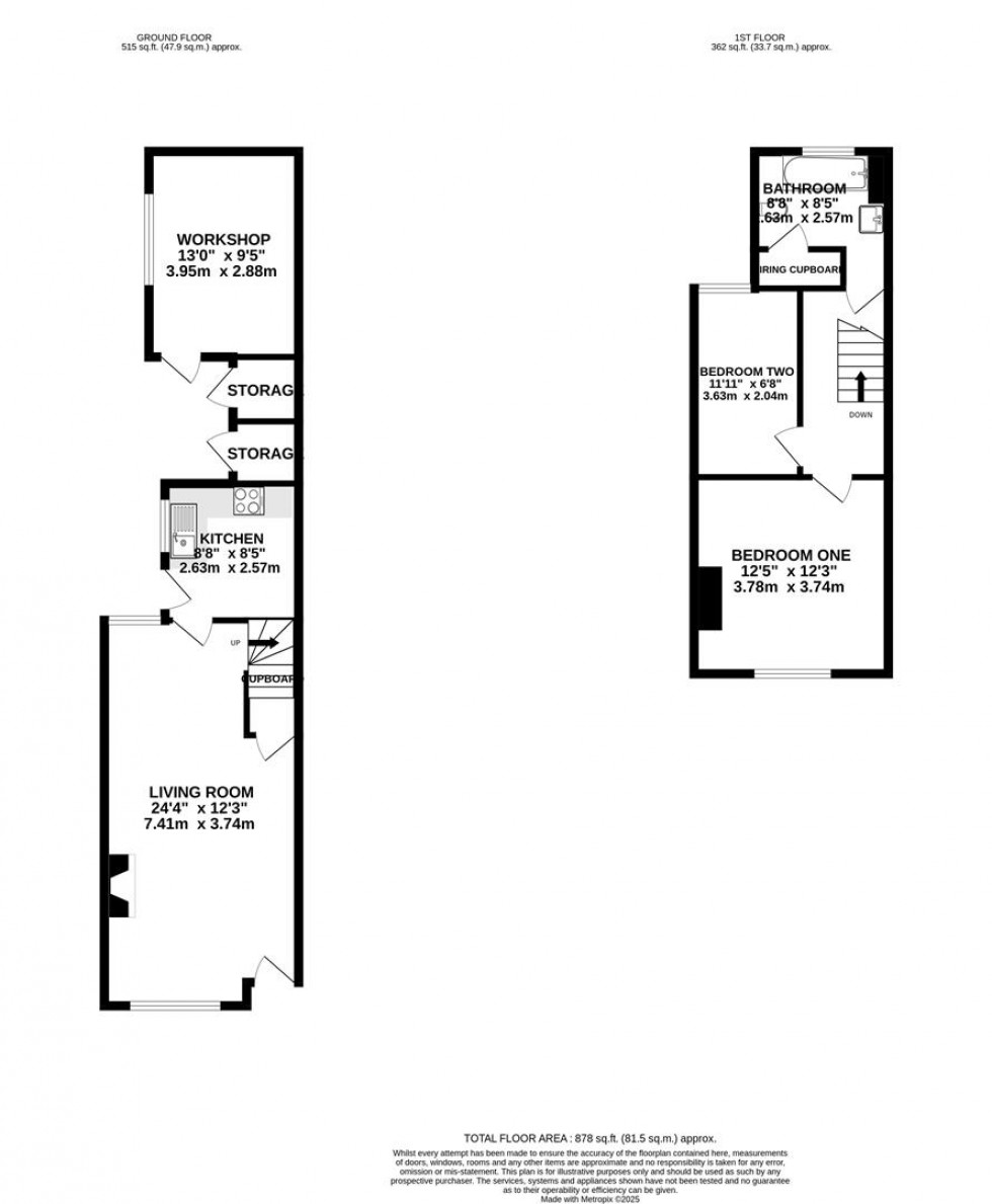
Living Room (7.42m x 3.73m)

A good sized living room with a double glazed window to the front and to the rear with views towards to the garden. Laminate wood flooring, brick built fireplace, door to kitchen and stairs to first floor.

Kitchen (2.64m x 2.57m)

A light and airy kitchen with ample wall and base units. Roll top work surfaces with an inset sink and drainer. Recess for the own, hob and washing machine. Wall mounted boiler, tile effect flooring and double glazed door and window to the garden.

Landing

Carpeted with doors to:

Bedroom one (3.78m x 3.73m)

Offering views to the front is this good sized room, carpeted and ample space for wardrobes.

Bedroom two (3.63m x 2.03m)

A light and airy room with views over the rear garden, laminate wood flooring and space for wardrobes.

Bathroom (2.64m x 2.57m)

Garden

There is a private garden to the rear laid mainly to lawn. There is also a useful brick built storage area which could be used as a workshop. There are two further small storage areas.

Services

Water. Mains
Drainage. Mains
Electricity. Mains
Heating. Gas

Mobile phone. The vendor is not aware of any specific restricted mobile phone coverage

Broadband. Superfast, obtained from Ofcom

  • Chain free
  • Mid terraced house
  • Two double bedrooms
  • Upstairs bathroom
  • Great sized living room
  • Kitchen
  • Outbuildings and workshop
  • Easy reach of central Caversham and reading mainline train station
  • EPC rating D
  • Council tax band C
Floorplan for Coldicutt Street, Caversham, Reading
EPC Graph for Coldicutt Street, Caversham, Reading

Get an instant online valuation

Find out how much your property is worth