St. Annes Road, Caversham, Reading

Let Agreed £1,250 PCM

2 1 1

NEA LETTINGS: A ground floor flat in a sought after area of Caversham. The two double bedroom furnished flat is located on St Anne's Road, in the heart of Caversham and just a short walk from Reading and the mainline station. The flat comprises of an entrance hall leading two double bedrooms, bathroom and large living/kitchen with French doors onto patio. The property also benefits from shared communal gardens and on road parking. EPC Rating TBC. DISCLAIMER: These particulars are a general guide only, they do not form part of any contract. Video content and other marketing material shown are believed to be an accurate and fair representation of the property at the time the particulars were created. Please ensure you have made all investigations, and you are satisfied that all your property requirements have been met if you make an offer without a physical viewing.

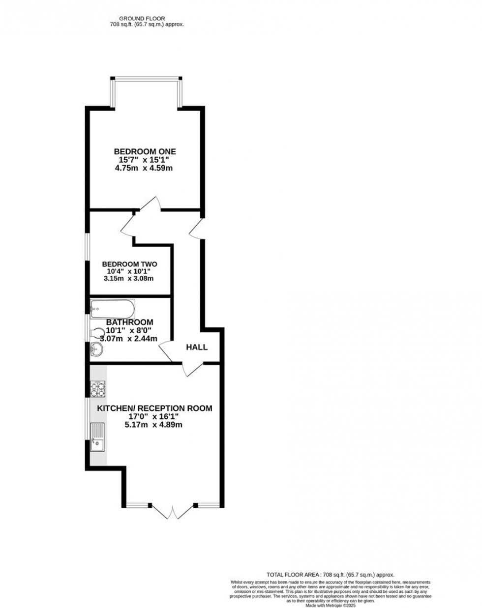
Hallway

Carpeted hallway with doors to all rooms and access to the basement which is locked off.

Bedroom one (4.75m x 4.60m)

Spacious carpeted double bedroom, with a window overlooking the garden at the rear of the property. Includes a double bed frame, three sets of drawers and two wardrobes.

Bedroom two (3.15m x 3.07m`)

A carpeted double bedroom which includes a double bed and mattress.

Bathroom (3.07m x 2.44m)

Large carpeted bathroom with a frosted window to the side, bath with shower over. A sink with mirrored cabinet over, WC, radiator.

Kitchen / Living room (5.18m x 4.90m)

Nice and bright large carpeted living room with French doors onto patio area. Furniture includes one sofa, dining room table and four chairs. Open to galley style kitchen with wood affect flooring, workspace and storage cabinets. Appliances include electric oven with four ring hob and extractor, washing machine, freestanding fridge freezer, sink and drainer under the window.
Please note that the white goods won't be replaced should they break down during tenancy.

  • NEA Lettings
  • Central Caversham
  • Ground floor flat
  • Two double bedrooms
  • Unfurnished
  • Communal garden
  • On-road parking
  • EPC Rating TBC
  • Council Tax Band C
  • Available 14th January
Floorplan for St. Annes Road, Caversham, Reading
EPC Graph for St. Annes Road, Caversham, Reading

Get an instant online valuation

Find out how much your property is worth