SOLD BY NICHOLAS ESTATE AGENTS & NEA LETTINGS: Set within this sought after location in the heart of Caversham only moments from Westfield Park is this well presented bay fronted terraced house. The property has been recently redecorated with new carpets and windows The property boasts two double bedrooms and a stylish upstairs bathroom on the first floor. On the ground floor there are two reception rooms, cast iron feature fire place and a modern kitchen. To the rear there is an easy to maintain garden that is ideal for summer entertaining. To appreciate the space on offer call now to view.

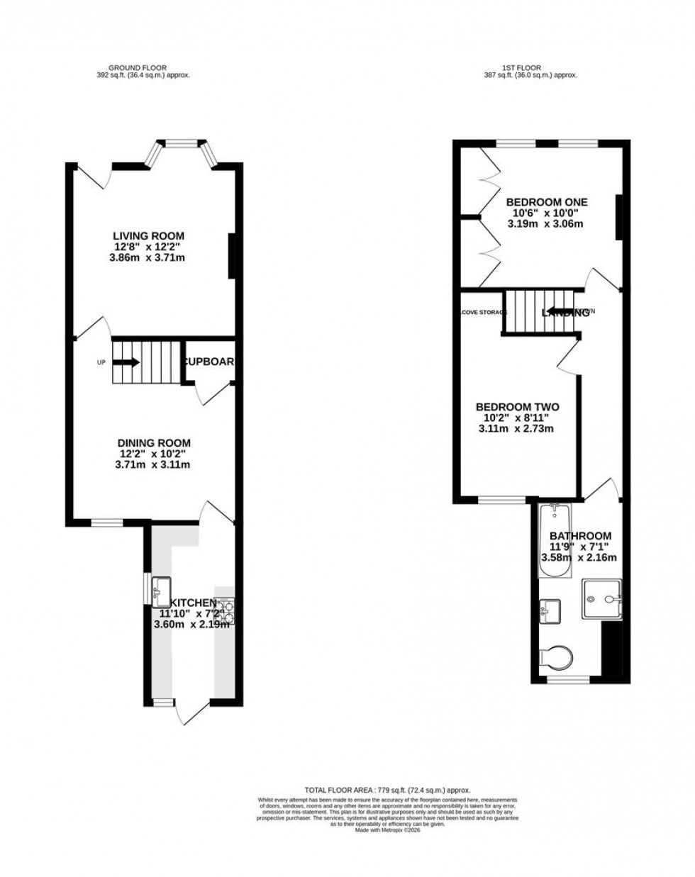
Living room (3.86m x3.71m)

A light and airy bay fronted room to the front with wooden floor and a feature fireplace. Door to staircase and dining room.

Dining room (3.71m x 3.10m)

A good sized room with a window to garden, wood floor, large under stairs cupboard and door to kitchen.

Kitchen (3.61m x 2.18m)

A modern kitchen with ample wall and base units, work surfaces with an inset sink and drainer. Four ring hob, oven, extractor, recess for a fridge/freezer, washing ,machine and dishwasher. Window to the side, wall mounted boiler and a door to the garden.

Landing

Carpeted, loft access and doors to:

Bedroom one (3.20m x 3.05m(to wardrobes))

To the front of the property is light and airy double bedroom with two windows to front, carpeted and ample built in wardrobes.

Bedroom two (3.10m x 2.72m)

A good sized room with a window to the rear, carpeted and alcove storage

Bathroom (3.58m x 2.16m)

A great sized modern bathroom comprising of a panelled bath, separate shower, wash hand basin and WC. Tiled floor, part tiled walls, extractor and a frosted window to the rear.

Rear garden

An easy to maintain garden that is partly laid to lawn and partly laid with shingle. Rear access and gate to the back pathway.

Services

Water. Mains
Drainage. Mains
Electricity. Mains
Heating. Gas

Appliances: All the appliances are untested

Mobile phone. The vendor is not aware of any specific restricted mobile phone coverage

Broadband. Superfast. Information obtained from Ofcom

  • Chain free
  • Easy access to central Caversham & Reading mainline station
  • Mid terrace period house
  • Two double Bedrooms
  • Upstairs bathroom
  • Enclosed rear garden
  • Two reception rooms
  • Modern kitchen
  • EPC Rating D
  • Council tax band C
Floorplan for Cromwell Road, Caversham, Reading
EPC Graph for Cromwell Road, Caversham, Reading

Get an instant online valuation

Find out how much your property is worth