SOLD BY NICHOLAS ESTATE AGENTS & NEA LETTINGS: Set within this sought after area of Caversham is this good sized bay fronted terraced house that is in need of updating throughout. The property does have the potential to extend (STP). On the first floor there are three double bedrooms. On the ground floor there are two reception rooms, good sized kitchen and bathroom room. To the rear there is great sized garden that stretches approximately 100ft. To the front there is a dropped kerb to allow parking. To appreciate the space on offer all now to view.

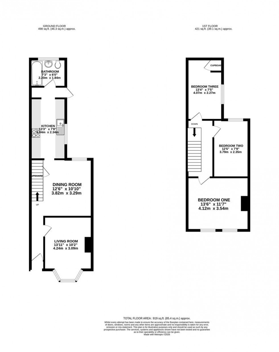
Hallway

Carpeted entrance hallway through with door to living room and period archway to dining room.

Living Room (4.24m (into bay) x 3.10m)

Bay fronted living room with chimney breast, period ceiling coving, laminate wood flooring, and large double glazed bay windows to front bringing in plenty of light.

Dining Room (3.81m x 3.30m)

Good size carpeted dining room with double glazed window onto rear garden. Understairs storage and stairs to first floor.

Kitchen (4.04m x 2.34m)

Generous galley kitchen with ample cupboard space from base and wall units. Tiled splashback and roll top work surfaces over recess for washing machine and tumble dryer or dishwasher. Wall mounted combi boiler, four ring hob and vented extractor. Large window out to garden. Door to the garden and bathroom.

Bathroom (2.21m x 1.83m)

Family bathroom with panelled bath, wall mounted shower and extractor fan. Walls and floors are all tiled, with lighting from ceiling spotlights and a large frosted window to back garden.

Landing

Stairs to good size landing with loft access, space for storage and doors to all bedrooms.

Bedroom One (4.11m x 3.53m)

Large carpeted master bedroom with two large double glazed windows to front and ample space for wardrobe storage either side of chimney breast.

Bedroom Two (3.78m x 2.36m)

Double bedroom with carpeted floor and large window overlooking rear garden.

Bedroom Three (4.06m x 2.26m)

Double bedroom with carpeted floor, corner cupboard and double glazed window to side.

Garden

Approximately 100ft long garden laid to lawn with path to full length and shrub borders.

Services

Water. Mains
Drainage. Mains
Electricity. Mains
Heating. Gas

Mobile phone. The vendor is not aware of any specific restricted mobile phone coverage

Broadband. Ultrafast, obtained from Ofcom

  • Chain free
  • Mid terraced house in need of updating throughout
  • Great sized garden that stetches approximately 100ft
  • Three double bedrooms
  • Modern bathroom
  • Good sized kitchen
  • Two reception rooms
  • Driveway parking
  • Council tax band C
  • EPC rating D
Floorplan for Gosbrook Road, Caversham, Reading
EPC Graph for Gosbrook Road, Caversham, Reading

Get an instant online valuation

Find out how much your property is worth