Hewitt Building, Alfred Street, Reading

Sold Subject to Contract £325,000

2 2 1

SOLD BY NICHOLAS ESTATE AGENTS & NEA LETTINGS: Stunning views over the Reading skyline come from all rooms of this 17th floor apartment set within this sought after development. The development offers easy access to Reading town center and Reading mainline station with its fast links to London. The property boasts two double bedrooms, two modern bathrooms, open plan living room & a modern kitchen. In addition there is a large balcony and secure parking. To appreciate the space and views on offer call now to view.

Communal entrance

A spacious and open communal entrance with access to the concierge office, mailboxes, refuse storage and lifts.

Hallway

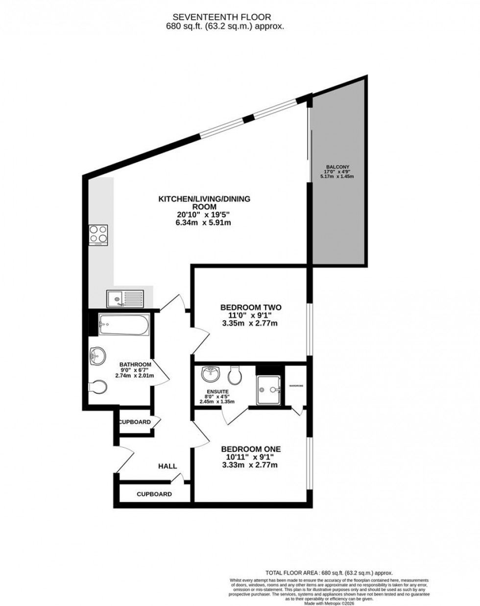
Entrance hall with wood effect flooring, underfloor heating and doors to the bedrooms, bathroom and living room/kitchen, utility cupboard with space for a washing machine and coat cupboard..

Bedroom one

A good sized double bedroom with carpet, underfloor heating, south facing window with views over the south of Reading and door to the ensuite.

En suite

Ensuite with tiled floor, shower, sink, underfloor heating, WC and heated towel rail.

Bedroom two

Spacious double bedroom with carpeted floor, under floor heating and south facing window with views over Reading.

Bathroom

Stylish and modern bathroom with tiled floor, underfloor heating, bath with shower, sink, WC and heated towel rail.

Living room / kitchen

Bright and airy living room with laminate flooring and under floor heating, two large windows looking to the East and window and door to the balcony, looking to the South giving you panoramic views over Reading.

Kitchen area

Modern kitchen with built in dishwasher, oven, hob, extractor and fridge freezer, plenty of cupboard space and work surfaces with space for a table and chairs.

Balcony

A good sized, South facing balcony with plenty of space for a table and chairs. The balcony receives sun all day and is perfect for breakfast!

Parking

The flat benefits from one parking space in the secure, underground car park. There are also two secure bike stores for the building.

Tenure

Lease: 250 years 2013
Service charge: £3490 PA Inc hot water with an additional £302 pa reserve fund and replacement of aluminum facade

Ground rent: £350 PA reviewed every 20 years by RPI

Services

Water. Mains
Drainage. Mains
Electricity. Mains
Heating and hot water centrally provided.

Mobile phone. The vendor is not aware of any specific restricted mobile phone coverage

Broadband. Ultrafast, information obtained from Ofcom

  • 17th floor
  • Stunning panoramic views over Reading
  • Two double bedrooms & two stylish bathrooms
  • High specification kitchen and open plan living room
  • Good sized balcony
  • Undercroft parking
  • Easy access to central Reading and Reading main line station
  • Underfloor heating
  • Council tax band D
  • EPC rating C
Floorplan for Hewitt Building, Alfred Street, Reading
EPC Graph for Hewitt Building, Alfred Street, Reading

Get an instant online valuation

Find out how much your property is worth