NEA LETTINGS: Located only moments from the heart of central Caversham is this good sized mid terraced period house that retains an abundance of character charm and period features. The property boasts two reception rooms, modern kitchen and guest WC on the ground floor. On the first floor there are two double bedrooms and a stylish up stairs bathroom. To the rear there is an easy to maintain garden that is ideal for summer entertaining. EPC RATING D.DISCLAIMER: These particulars are a general guide only, they do not form part of any contract. Video content and other marketing material shown are believed to be an accurate and fair representation of the property at the time the particulars were created. Please ensure you have made all investigations, and you are satisfied that all your property requirements have been met if you make an offer without a physical viewing.

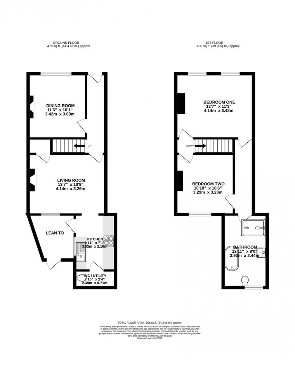
Hallway

A welcoming entrance hall with wooden floor, doors to the living room and dining room and stairs to the first floor.

Living room (3.43m x 3.07m)

A good sized living room with wooden floor, feature fireplace and window to the front of the property.

Dining room (4.14m x 3.25m)

A spacious dining room with door to the kitchen wooden floor, feature fireplace and understairs storage.

Kitchen (3.02m x 2.16m)

Newly refurbished kitchen featuring a tiled floor, doors leading to the WC and utility room, and fitted appliances including a built-in fridge freezer, oven, gas hob with extractor hood and dishwasher.

W/C (2.39m x 0.71m)

WC with tiled flooring, wash basin, and washing machine.

Utility area

Utility area with space storage and door to the garden.

Landing

Carpeted landing with doors to both bedrooms.

Bedroom one (4.14m x 3.43m)

Carpeted double bedroom with two windows overlooking the front of the property and doors to stairs and corridor leading to the bathroom.

Bedroom two (3.30m x 3.20m)

Carpeted double bedroom with window overlooking the garden, built in cupboard and doors to stairs and corridor to bathroom.

Bathroom (3.94m x 2.44m)

Stylish and modern bathroom with independent access from both bedrooms, tiled floor, shower stall, bath, WC, sink with storage, heated towel rail and window to the rear.

Garden

Well-proportioned and private garden featuring a lawn, patio, and bordered areas.

  • NEA Lettings
  • Caversham
  • Mid terrace house
  • Two double bedrooms
  • Unfurnished
  • Enclosed Rear Garden
  • Permit Parking
  • EPC rating D
  • Council tax band C
  • Available immediately
Floorplan for Gosbrook Road, Caversham, Reading
EPC Graph for Gosbrook Road, Caversham, Reading

Get an instant online valuation

Find out how much your property is worth