SOLD BY NICHOLAS ESTATE AGENTS & NEA LETTINGS: Situated within this popular conservation area that offers easy access to Reading mainline station, The Royal Berkshire hospital, Reading University and the Oracle shopping center is this terraced home that boasts an abundance of period charm. The property boasts two reception rooms with stripped wood flooring and two double bedrooms. In addition is a modern kitchen and a good sized bathroom. To the rear there is an easy maintain West facing garden that is ideal for summer entertaining. To appreciate the location and space on offer call now to view.

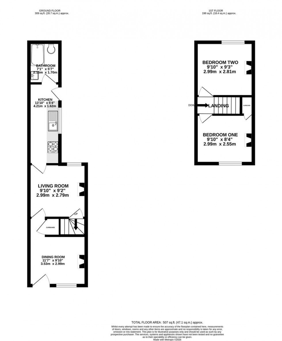
Dining Room (3.53 x 2.99)

A welcoming and spacious dining room with polished wooden floor, gas fire, window to the front of the property and door to the living room.

Living Room (2.99 x 2.79)

A good sized living room with polished wooden floor, window overlooking the garden, stairs to the first floor, understairs cupboard and door to the kitchen

Kitchen (4.21 x 1.62)

Galley style kitchen with tiled floor, plenty of storage units, roll top work surfaces, a large window to the side of the property built in oven and hob, space for a washing machine and fridge freezer, doors to the garden and the bathroom.

Bathroom (1.7 x 2.15)

Bright and modern bathroom with tiled floor, bath with shower, sink, WC and frosted window to the side of the property.

Bedroom one (2.99 x 2.55)

A large, carpeted double bedroom with lots of natural light from the window overlooking the front of the property and built in storage.

Bedroom two (2.99 x 2.55)

An equally large, carpeted double bedroom with lots of light and views from the window overlooking the garden. A pull down ladder to the boarded loft.

Garden

A well maintained and quiet, west facing garden with good sized patio area - perfect for evening barbecues.

Services

Water. Mains
Drainage. Mains
Electricity. Mains
Heating. Gas

Appliances: All the appliances are untested

Mobile phone. The vendor is not aware of any specific restricted mobile phone coverage

Broadband. Ultrafast, obtained from Ofcom

  • Eldon Square conservation area location
  • Close to Royal Berkshire Hospital
  • Easy access to Reading town centre and mainline station
  • Two double bedrooms
  • Two reception rooms
  • West facing garden
  • Mid terraced period house
  • Quiet residential area
  • EPC Rating D
  • Council Tax band A
Floorplan for Eldon Street, Reading
EPC Graph for Eldon Street, Reading

Get an instant online valuation

Find out how much your property is worth