CHAIN FREE & WITH AN EXTENDED LEASE: Set within this sought after area of Emmer green that offers easy access to the local shops and doctors surgery is this recently redecorated maisonette for the over 55's. The property offers attractive views over the allotments and park to the front. The property boasts two double bedrooms, separate kitchen and a good sized living room. To the front there is a private garden that is ideal for summer entertaining and to the rear there is allocated parking. To appreciate the space and location viewing is essential. Call now to view.

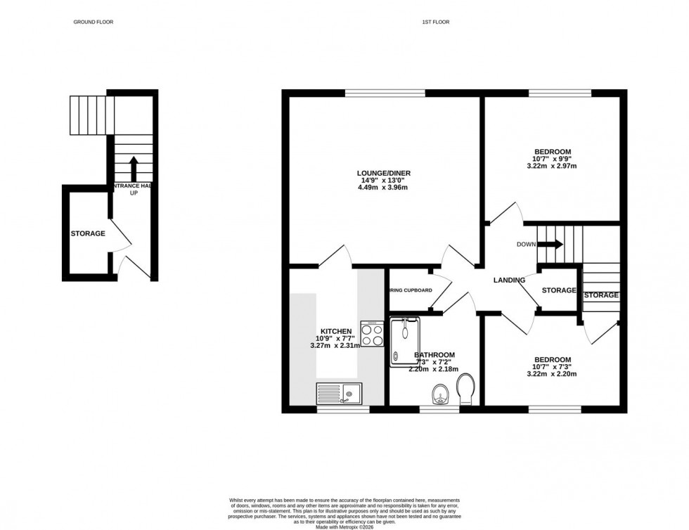
Hallway

A carpeted entrance hallway with a large built in cupboard and stairs to the first floor.

Landing

An open, carpeted landing with built in storage and airing cupboard with doors to the bedrooms, bathroom and living room.

Bedroom one (3.22 x 2.97)

A good sized, carpeted double bedroom with a large window to the rear of the property.

Bedroom two (3.22 x 2.2)

A good sized, carpeted bedroom with large window overlooking the garden.

Bathroom (2.2 x 2.18)

A modern and stylish bathroom with tiled flooring, a large shower cubicle, sink with storage, WC and frosted window to the front of the property.

Kitchen (3.27 x 2.31)

A galley style kitchen with vinyl flooring, plenty of eye level and base units with a good amount of wooden work surfaces, extensive tiled splashback, built in oven, hob and extractor with space for washing machine, dishwasher and fridge freezer with a good sized window overlooking the garden.

Living room (4.49 x 3.96)

A bright and spacious living room with door to the kitchen and large window overlooking the rear of the property.

Garden

A pleasant and easy to maintain garden, mostly laid to lawn with a decked patio area and shed.

Services

Water. Mains
Drainage. Mains
Electricity. Mains
Heating. TBC

Mobile phone. The vendor is not aware of any specific restricted mobile phone coverage

Broadband. Superfast, information obtained from Ofcom

All appliances and services are untested.

Tenure

Lease: 99 years from 1986. The owners are currently in the process of extending the lease to 990 years from 2000
Service charge. £1306.80 PA inc reserve fund contribution and building insurance
Ground rent £100 pa
The property is sold with a 90% share. There is no rent for the additional 10% and you cannot staircase to the full 100%

View to the front

  • First floor maisonette for the over 55's
  • Private garden
  • Allocated Parking
  • Quiet residential location
  • Close to local ameneties
  • Easy access to Caversham and Reading town centres
  • Good public transport service
  • Two good sized bedrooms
  • Council tax band C
  • EPC Rating C
Floorplan for Unity Court, Emmer Green, Reading
EPC Graph for Unity Court, Emmer Green, Reading

Get an instant online valuation

Find out how much your property is worth